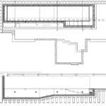
Site excavation work has started on a new build basement swimming pool in London. The pool will be 20 meters in length and will have 2 depths with sloped riser between them. The shallow water depth is 1.3m going down to a deep end water depth of 2m.
The pool will be a skimmer pool with a 150mm free-board to the surround floor tiles, it will also benefit from a remotely controlled hidden thermal slatted cover.
The pool hall will be built from scratch and will be located below an existing garden.
Working closely with the architects and mira construction, Brookforge will be designing, building, tanking, tiling and piping up everything pool related.
The plant room and all the associated equipment will be installed and tested by Brookforge as well as the pool hall air handling, dehumidification and ducting systems.
New build basement swimming pool construction
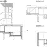
The Pool will be constructed using the Quadlock Insulated Concrete Form-work (ICF) system and will be built of a Reinforced slab installed by the existing site workers from a Brookforge slab design drawings.
Once the slab is ready work will begin constructing the Quadlock insulated form-work and the associated Reinforcing steel-work. When the walls are ready, concrete will pe pumped down into the basement through large core rubber hoses from road level concrete pump with extendable boom. Using this method of construction will save greatly on time and also ensure a regular consistancy of the concrete which will be brought to site remixed in a mixer wagon.
Admittedly from the pictures on this page there’s still a large amount of excavation and groundwork’s to be done before the pool slab can be installed we can start to build basement swimming pool.
As the project progresses, we will be posting regular updates so you can follow the pool build project progress by clicking the project number: 14-591.

