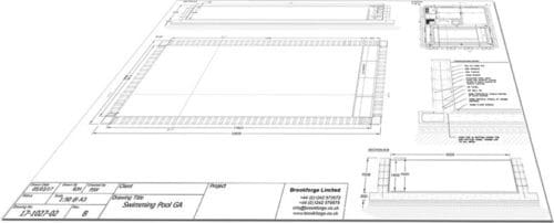
Work has begun on an insulated swimming pool build at a private residence close to Warrington. The indoor pool will be 11m x 5m when complete and will feature an automated slatted cover which will be housed behind a hidden wall.
The pool will include LED under water lighting and pool side water feature fountains which will cascade into the pool when required. The pool structure will be completed before the pool building is constructed around the pool, this makes it easy for us to access all areas of the pool and will really speed up its construction.
Insulated swimming pool build day-by-day
The reinforced swimming pool slab has already been poured from drawings we provided weeks earlier and the site conditions are perfect to start the Quadlock construction.
Day 1 involves the site survey and set-out for the track from which the Quadlock will be installed. Once fixed to the slab, course 1 can be installed into the track and wall ties inserted, in preparation for the next course.
By day 2 steel reinforcing re-bars are anchored to the pool slab allowing for the horizontal reinforcing bars to be installed and course two can be added.


